Descriptif
Magnifique chalet construit en 2021, offrant une surface habitable d’environ 180 m², idéalement situé au bord du bisse du Milieu, dans un environnement paisible et privilégié, parfait pour les amateurs de randonnées et de nature.
Ce bien bénéficie d’une vue imprenable sur la station de Nendaz ainsi que sur les majestueuses Alpes bernoises et vaudoises.
De conception moderne et réalisé avec des matériaux de qualité, le chalet se compose comme suit :
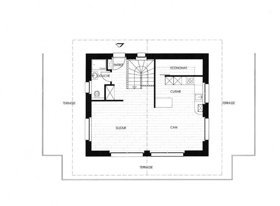
À l’étage, vous découvrirez un vaste séjour lumineux avec cuisine ouverte et économat, un hall d’entrée ainsi qu’une salle de douche. Les grandes baies vitrées offrent une luminosité exceptionnelle et un panorama à couper le souffle.
Au rez-de-chaussée, la partie nuit propose quatre belles chambres, dont une suite parentale avec salle de douche attenante et dressing, une seconde salle de douche ainsi qu’un local technique.
Un garage-box ainsi qu'une place de parc extérieure complètent ce bien d’exception.
La barrière extérieure va être refaite prochainement.
! Ce bien est uniquement disponible comme résidence principale !
Ce bien bénéficie d’une vue imprenable sur la station de Nendaz ainsi que sur les majestueuses Alpes bernoises et vaudoises.
De conception moderne et réalisé avec des matériaux de qualité, le chalet se compose comme suit :
À l’étage, vous découvrirez un vaste séjour lumineux avec cuisine ouverte et économat, un hall d’entrée ainsi qu’une salle de douche. Les grandes baies vitrées offrent une luminosité exceptionnelle et un panorama à couper le souffle.
Au rez-de-chaussée, la partie nuit propose quatre belles chambres, dont une suite parentale avec salle de douche attenante et dressing, une seconde salle de douche ainsi qu’un local technique.
Un garage-box ainsi qu'une place de parc extérieure complètent ce bien d’exception.
La barrière extérieure va être refaite prochainement.
! Ce bien est uniquement disponible comme résidence principale !
Commodités
Environnement
- Village
- Montagnes
- Sans brouillard
- Quartier résidentiel
- Enfants bienvenus
- Centre sportif
- Proche d'un golf
- Piste de ski
- Station de ski
- Remontées mécaniques
- Piste ski de fond
- Sentiers de randonnée
- Piste cyclable
- Terrain de football
- Patinoire
- Médecin
Extérieur
- Balcon(s)
- Terrasse(s)
- Jardin
- Garage
Intérieur
- Cuisine ouverte
- Economat
- Partiellement meublé
Equipement
- Cuisine agencée
- Cuisine équipée
- Lave-linge
- Sèche-linge
Sol
- Carrelage
- Parquet
Etat
- Comme neuf
Ensoleillement
- Bon
Style
- Moderne







































