Beschreibung
Nur 100 Meter von der Seilbahn und der Bushaltestelle entfernt, bietet dieses geräumige Apartment ein bemerkenswertes Potenzial für die Schaffung eines individuellen Lebensraums in idyllischer Umgebung. Im ersten Stock mit einer Ost-Südwest-Querausrichtung genießen Sie den ganzen Tag über viel natürliches Licht.
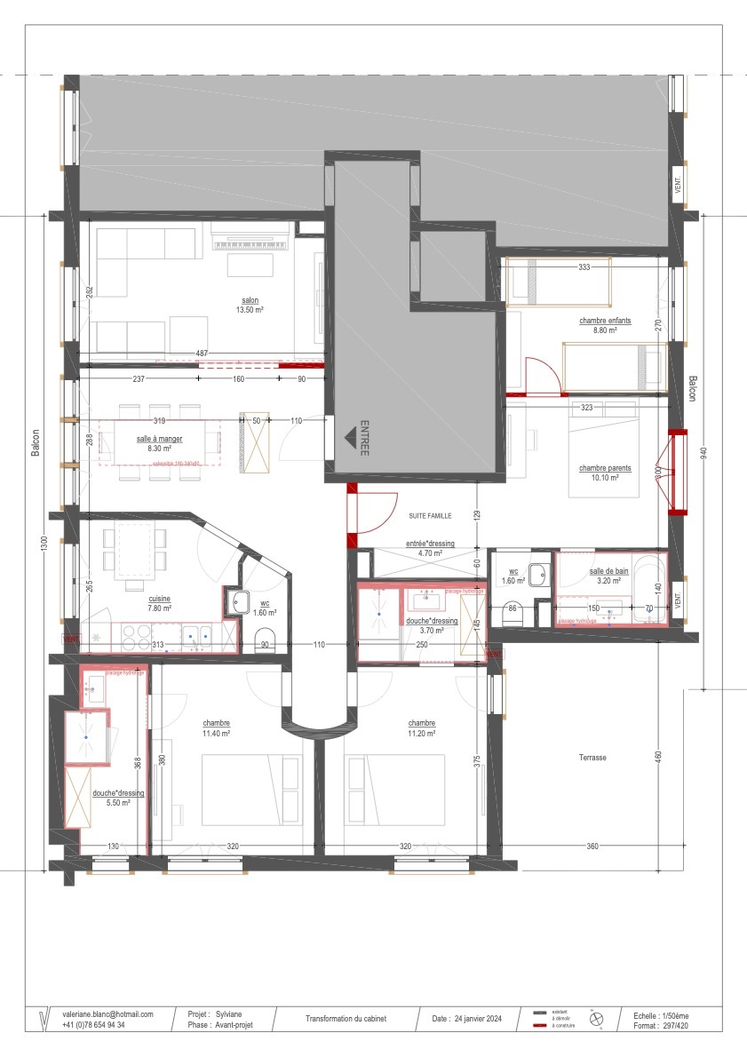
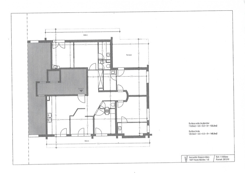
Die großzügige Wohnfläche von 133,5 Quadratmetern, einschließlich Terrasse und Balkon, bietet Ihnen viel Platz, um Ihre Einrichtungsideen zu verwirklichen. Zwei nicht namentlich gekennzeichnete Parkplätze im Park des Gebäudes sorgen für Ihren täglichen Komfort. Darüber hinaus bieten ein Skiraum mit Vorhängeschloss sowie zwei Kellerräume praktischen Stauraum für Ihre Ausrüstung und persönlichen Gegenstände.
Diese Immobilie besteht aus sieben Zimmern, die alle mit Wasseranschlüssen ausgestattet sind und somit eine große Flexibilität bei der Einrichtung bieten. Eine Renovierung ist zu erwarten. Sie haben die Möglichkeit, ein großes Wohnzimmer mit offener Küche zu schaffen oder den Raum in ein separates Wohn- und Esszimmer zu trennen. Es gibt vier Schlafzimmer, drei Duschen und zwei bereits vorhandene Toiletten.
Genießen Sie auch die Terrasse mit Blick auf den Garten, die einen direkten Zugang zum Rasen bietet und ideal ist, um sonnige Tage und ruhige Abende im Freien zu genießen.
Verpassen Sie nicht diese außergewöhnliche Gelegenheit, in eine Immobilie mit unbegrenztem Potenzial zu investieren, um Ihre eigene Oase des Komforts und der Entspannung in den Schweizer Alpen zu schaffen.
Kontaktieren Sie uns noch heute, um eine Besichtigung zu vereinbaren und das volle Potenzial dieser renovierungsbedürftigen Wohnung in Haute-Nendaz zu entdecken.
    Die großzügige Wohnfläche von 133,5 Quadratmetern, einschließlich Terrasse und Balkon, bietet Ihnen viel Platz, um Ihre Einrichtungsideen zu verwirklichen. Zwei nicht namentlich gekennzeichnete Parkplätze im Park des Gebäudes sorgen für Ihren täglichen Komfort. Darüber hinaus bieten ein Skiraum mit Vorhängeschloss sowie zwei Kellerräume praktischen Stauraum für Ihre Ausrüstung und persönlichen Gegenstände.
Diese Immobilie besteht aus sieben Zimmern, die alle mit Wasseranschlüssen ausgestattet sind und somit eine große Flexibilität bei der Einrichtung bieten. Eine Renovierung ist zu erwarten. Sie haben die Möglichkeit, ein großes Wohnzimmer mit offener Küche zu schaffen oder den Raum in ein separates Wohn- und Esszimmer zu trennen. Es gibt vier Schlafzimmer, drei Duschen und zwei bereits vorhandene Toiletten.
Genießen Sie auch die Terrasse mit Blick auf den Garten, die einen direkten Zugang zum Rasen bietet und ideal ist, um sonnige Tage und ruhige Abende im Freien zu genießen.
Verpassen Sie nicht diese außergewöhnliche Gelegenheit, in eine Immobilie mit unbegrenztem Potenzial zu investieren, um Ihre eigene Oase des Komforts und der Entspannung in den Schweizer Alpen zu schaffen.
Kontaktieren Sie uns noch heute, um eine Besichtigung zu vereinbaren und das volle Potenzial dieser renovierungsbedürftigen Wohnung in Haute-Nendaz zu entdecken.
Eigenschaften
Umgebung
- Dorf
- Berge
- Restaurant(s)
- Bushaltestelle
- Skipiste
- Skigebiet
- Seilbahnen
- Langlaufloipe
- Arzt
- Thermalbad
Aussenbereich
- Balkon(e)
- Terrasse(n)
- Parkplatz
Innenbereich
- Lift
Ausrichtung
- Süden
- Osten
- Westen
 
                    
























