Beschreibung
Ideal gelegen, nur 2 Minuten vom Zentrum von Haute-Nendaz entfernt, bietet diese 4.5-Zimmer-Wohnung einen komfortablen und praktischen Lebensraum. Mit einer großzügigen Fläche ist es perfekt für einen Haupt- oder Zweitwohnsitz.
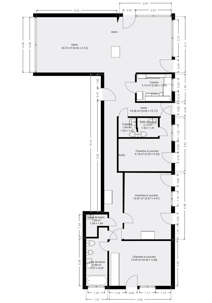
Wichtigste Merkmale :
- Wohnfläche: ~ 120 m².
- Anzahl Zimmer : 4.5, bestehend aus :
- 3 helle Schlafzimmer
- 1 großes Wohnzimmer, das zum Esszimmer hin offen ist
- 1 funktionell ausgestattete Küche
- 2 Badezimmer
- 1 Besucher-WC
- 1 Vorratskammer
- 1 großer Abstellraum
- 1 sehr großer Keller
- Balkon/Terrasse: Genießen Sie einen Außenbereich mit einem atemberaubenden Blick auf die umliegenden Berge.
Vorteile des Objekts :
- Nähe: Nur wenige Schritte von Geschäften, Restaurants und wichtigen Dienstleistungen entfernt.
- Erreichbarkeit: Nur wenige Minuten von den Skiliften entfernt, um die Skipisten zu erreichen.
- Parkplatz: Eigene Garage.
Diese seltene Immobilie vereint Raum, Komfort und eine erstklassige Lage in einer beliebten Region für Berg- und Wintersportfans.
Kontaktieren Sie uns noch heute, um weitere Informationen zu erhalten oder eine Besichtigung zu vereinbaren. Verpassen Sie nicht diese einmalige Gelegenheit in Haute-Nendaz!
Wichtigste Merkmale :
- Wohnfläche: ~ 120 m².
- Anzahl Zimmer : 4.5, bestehend aus :
- 3 helle Schlafzimmer
- 1 großes Wohnzimmer, das zum Esszimmer hin offen ist
- 1 funktionell ausgestattete Küche
- 2 Badezimmer
- 1 Besucher-WC
- 1 Vorratskammer
- 1 großer Abstellraum
- 1 sehr großer Keller
- Balkon/Terrasse: Genießen Sie einen Außenbereich mit einem atemberaubenden Blick auf die umliegenden Berge.
Vorteile des Objekts :
- Nähe: Nur wenige Schritte von Geschäften, Restaurants und wichtigen Dienstleistungen entfernt.
- Erreichbarkeit: Nur wenige Minuten von den Skiliften entfernt, um die Skipisten zu erreichen.
- Parkplatz: Eigene Garage.
Diese seltene Immobilie vereint Raum, Komfort und eine erstklassige Lage in einer beliebten Region für Berg- und Wintersportfans.
Kontaktieren Sie uns noch heute, um weitere Informationen zu erhalten oder eine Besichtigung zu vereinbaren. Verpassen Sie nicht diese einmalige Gelegenheit in Haute-Nendaz!
Eigenschaften
Umgebung
- Berge
- Geschäfte
- Bank
- Post
- Restaurant(s)
- Apotheke
- Bushaltestelle
- Skipiste
- Skigebiet
- Seilbahnen
- Langlaufloipe
- Wanderwege
- Radweg
- Arzt
- Thermalbad
Aussenbereich
- Balkon(e)
- Terrasse(n)
- Garten
- Garage
Innenbereich
- Einstellhallenplatz
- Separate WC's
- Gäste-WC
- Vorratskammer
- Keller
- Fahrradraum
- Skiraum
- Unmöbliert
- Cheminée
- Doppelverglasung
Ausstattung
- Moderne Küche
- Waschmaschine
- Wäschetrockner
- Dusche
- Badewanne
Boden
- Fliesen
- Parkett
Ausrichtung
- Norden
- Osten
- Westen
Aussicht
- Schöne Aussicht
- Berge
- Alpen




























