Descriptif
Situé dans le charmant quartier de Tsamandon, à 1 minute en voiture et à 10 minutes à pied du coeur de la station de Haute-Nendaz, magnifique terrain à bâtir d’environ 900 m2, zone H50, situation très calme et bien ensoleillée, vue incroyable sur les Alpes bernoises. Accès aisé toute l’année. Bus navette à proximité.
Plans compris dans le prix du terrain.
Possibilité de construire un grand chalet d’une surface pondérée d’environ 325 m2 (habitable 250 m2, fitness 30 m2, terrasses couvertes 110 m2, garage 48 m2, technique 51 m2).
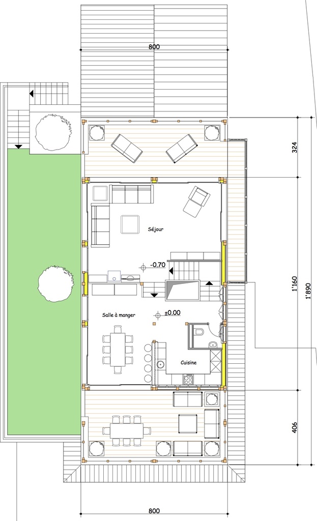
Rez inférieur : entrée avec rangements, studio avec petite cuisine, salle de bain (douche et WC), WC séparé, espace sauna et fitness, buanderie, local à ski, cave. Rez supérieur : grand séjour avec balcon couvert, cuisine ouverte, salle à manger avec accès sur la terrasse couverte, WC visiteurs.
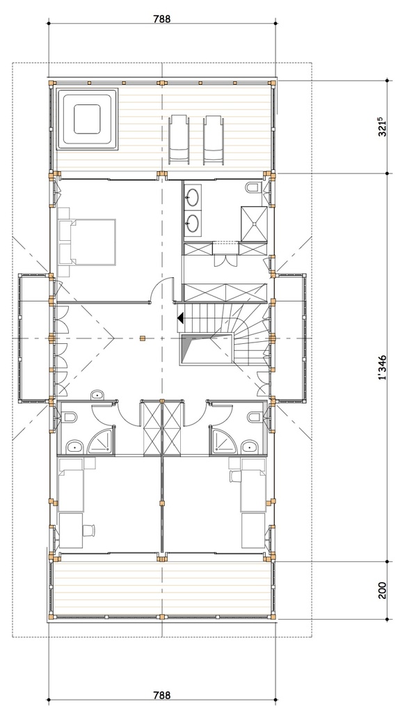
Etage : hall spacieux, 2 chambres avec chacune une salle de bains (douche, WC) et balcon couvert, 1 grande chambre avec dressing et salle de bains, balcon couvert.
Garage pour 2 voitures, 2 places de parc extérieures, grand jardin.
Plans compris dans le prix du terrain.
Possibilité de construire un grand chalet d’une surface pondérée d’environ 325 m2 (habitable 250 m2, fitness 30 m2, terrasses couvertes 110 m2, garage 48 m2, technique 51 m2).
Rez inférieur : entrée avec rangements, studio avec petite cuisine, salle de bain (douche et WC), WC séparé, espace sauna et fitness, buanderie, local à ski, cave. Rez supérieur : grand séjour avec balcon couvert, cuisine ouverte, salle à manger avec accès sur la terrasse couverte, WC visiteurs.
Etage : hall spacieux, 2 chambres avec chacune une salle de bains (douche, WC) et balcon couvert, 1 grande chambre avec dressing et salle de bains, balcon couvert.
Garage pour 2 voitures, 2 places de parc extérieures, grand jardin.
Remarques
IMPORTANT : Cet objet est réservé aux Suisses et aux résidents suisses, pour la construction d'une résidence principale!
Commodités
Environnement
- Montagnes
- Station de ski
- Sentiers de randonnée
Extérieur
- Silencieux/tranquille
- Verdure
Exposition
- Nord
- Sud
Ensoleillement
- Favorable
Vue
- Belle vue
- Panoramique
- Montagnes
- Alpes














